TCC Japanのプレスリリース
引退競走馬支援活動などに取り組む TCC Japan(所在地:滋賀県栗東市、代表取締役:山本 高之)は、馬のうんちである「BAFUN」をテーマとした都市型コンセプトショップ「BafunYasai TCC CAFE」のオープンに向け、クラウドファンディングをスタートしました。2023年2月8日(水)から3月15日(水)まで、クラウドファンディングサービス「READYFOR」にて1500万円を目標に支援を募ります。
▼プロジェクトページはこちらhttps://readyfor.jp/projects/TCC_CAFE
プロジェクトページ
- 「BafunYasai TCC CAFE」について
ー「BAFUN」×「食」ー
2023年4月、TCC Japanの都市型コンセプトショップ「BafunYasai TCC CAFE」を東京表参道エリア(渋谷区神宮前)にオープンします。
引退競走馬の社会課題に対する「支援の多様性」「間口の広い啓発」「日々の生活行動との結びつき」「SDGs」「エシカル消費」など、これらの要素をヒントに「BAFUN」と「食」をつなぎ合わせ、誰もが気軽に集える場所づくりをしようとたどり着きました。
馬のうんちである「BAFUN」をテーマとし、馬ふん堆肥でつくられた安心安全な旬の野菜や果物、またその加工品を全国各地の農家さんから直接仕入れ、飲食や物販として提供。ワークショップやさまざまなイベントを開催します。
日々の生活行動である「食」を通じた引退競走馬への間接的支援、諸課題の啓発、そして私たちが愛してやまない馬とのサスティナブルな共生社会を目指します。
TCC CAFE パース1
TCC CAFE パース2
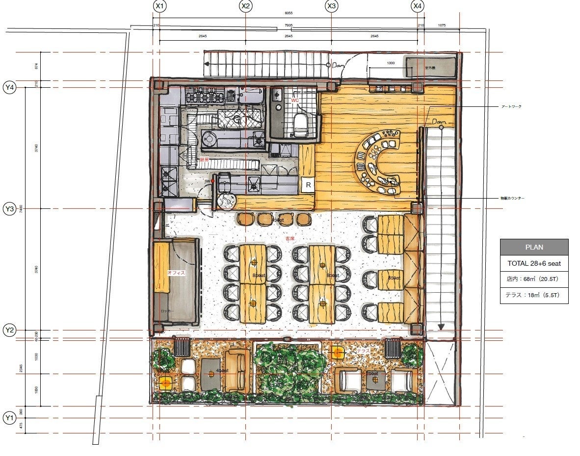
TCC CAFE 平面図
「BafunYasai TCC CAFE」が「BAFUN」と「食」を通じた人馬のサスティナブルな社会活動の象徴となるよう、一緒にお店作りに取り組んでいただきたい、皆さまにご参加いただきたいと思い、クラウドファンディングへの挑戦を決意しました。
今回のクラウドファンディングは支援者様の推し馬や応援している馬の写真をご支援という形で集め、それらを元に一枚のモザイクアートを制作し、モニュメントとして店内に掲示します。
よって、今回の店舗オープンにかかる費用として資金のご協力をいただくための目標金額はもちろん大事ですが、モザイクアートを制作するための5,000枚という写真枚数を一番の目標数字としてチャレンジします。
- プロジェクト概要
馬を愛するみんなが集える場所を、馬を愛するみんなでつくる。
「BAFUN×食。引退競走馬とのサスティナブルな共生社会の実現へ!」
▼プロジェクトページはこちら
https://readyfor.jp/projects/TCC_CAFE
受付期間:2023年2月8日(水)10:00〜3月12日(日)23:00
目標金額:1,500万円
目標枚数:5,000枚(モザイクアート制作枚数)
リターン:3,000円~300,000円まで計8コース(「モザイクアート写真参加」「モザイクアート完成データ/ポストカード/ポスター」「TCC CAFEオープニングセレモニー参加」など)
モザイクアート カラーカンプ
資金使途:
1.モザイクアートの制作費用:約700,000円(原画制作、モザイクアート制作、印刷~設置施工費用)
2.オープニングスタッフの採用・研修費:約1,000,000円
3.ARを用いたTCCホーススタンプラリー費用:約500,000円
4.店舗オープンにかかる費用の一部:約15,000,000円(物件取得費、店舗設計管理費用、内装工事費、厨房設備費)
※本プロジェクトは、支援総額が期日までに目標金額に届かなかった場合でも、目標金額分を自己負担するなどして必ず上記の実施内容の通り実行します。
- TCC Japan 会社概要
TCC Japan イメージ
ー馬と共に社会をゆたかにー
TCC Japanでは馬のまち栗東(滋賀県栗東市)を活動拠点とし、引退競走馬の支援活動「TCC 引退競走馬ファンクラブ」や、馬をパートナーとしたホースセラピーなどの社会活動に取り組んでいます。
TCC Japan ロゴ
会社名:株式会社TCC Japan
代表取締役:山本 高之
本社所在地:〒520-3017 滋賀県栗東市六地蔵31-6 TCC Therapy Park
設立:2006年1月11日
Webサイト:https://tcc-japan.com/
Twitter:https://twitter.com/tcc_official_
Instagram:https://www.instagram.com/tcc__official/
Facebook:https://www.facebook.com/RetiredRacehorseFanclub.TCC/
YouTube:https://www.youtube.com/@TCC_Japan
- 本件に関するお問い合わせ
株式会社TCC Japan 広報担当まで
電話:077-584-5945
メールアドレス:info@tcc-japan.com

